Филиал в ЯрославлеБОЛЕЕ 27 ЛЕТ НА РЫНКЕ |
Тел./факс: +74852260588 Моб.тел.: +79806597290 |
«Русский Проект»® - одна из лидирующих компаний на российском рынке технологий и оборудования для предприятий общественного питания и торговли. С 1990 года мы предлагаем весь спектр услуг по проектированию, оснащению и техническому обслуживанию предприятий общественного питания и торговли любого формата и профиля.
Компания «Русский Проект»® располагает собственными производственными мощностями – заводами «Iterma» и «T&T», выпускающими нейтральное и технологическое оборудование, мебель для предприятий общественного питания. Собственное производство позволяет нам выполнять в том числе и нестандартные, уникальные заказы.
На территории Ярославской и соседних областей силами специалистов «Русский Проект»® успешно реализованы тысячи идей, оборудованы магазины, гостиницы и рестораны, высокотехнологично оснащены предприятия общественного питания.
Нашей компанией проектировались и оснащались многие крупные предприятия общественного питания и магазины г. Ярославля и прилегающих областей. Среди объектов, сданных «под ключ»: столовые и комбинаты питания НПО Сатурн, Ярославского шинного завода, завода «Красный Маяк», ЗАО «Славнефть-ЯНОС», ресторан гостиницы «Юбилейная», ресторан гостиницы «Волжская жемчужина», супермаркеты «Лотос», «Арс», магазины «Атрус», «Север -3», «ЯрМарка», магазин кулинария «Фрекен Бокен», столовая ЗАО «Р-Фарм», столовая ОАО «Северсталь».
Мы поставляем на рынок оборудование свыше 100 импортных и российских фирм - производителей. С образцами предлагаемого оборудования можно ознакомиться в нашем выставочном зале. Фирма располагает складскими помещениями, ремонтной базой и транспортом.
В Торгово-Сервисной компании Ярославского отделения ГК «Русский Проект»® работает более 90 высококвалифицированных специалистов, включая службу сервиса, сотрудники которой прошли обучение на заводах фирм-производителей. Оперативная служба сервиса обеспечивается постоянно пополняемым складом запчастей к любому поставляемому оборудованию.
ОСНОВНЫЕ НАПРАВЛЕНИЯ ДЕЯТЕЛЬНОСТИ
- Разработка концепции, проектирование предприятий торговли и пищевых производств
- Оснащение пищевых производств, объектов торговли, гостиниц, прачечных
- Оборудование для ресторанов, баров, столовых, кафе
- Профессиональная посуда и аксессуары
- Мебель для баров и ресторанов по индивидуальным заказам
- Супермаркеты и гипермаркеты, продовольственные магазины, торговые зоны при АЗС
- Нонфуд любого формата
- Столовые школьные и производственные
- Пекарни, кондитерские
- Прачечные и химчистки
- Кейтеринговые компании
- Фабрики-кухни и комбинаты питания
- Центральные холодильные машины, холодильные камеры
- Монтаж и пусконаладочные работы, запасные части и комплектующие, постгарантийное обслуживание
- Обучение работе на оборудовании, мастер-классы и технологическая поддержка
ПРОЕКТИРОВАНИЕ
Предварительный этап работ
Лучшее время для проектирования ресторана – период до начала строительных работ. Именно в этот период проектировщик может расположить необходимые помещения и инженерные системы с учетом всех требований существующих нормативных документов (СНиП, СанПиН, ВНТП, ППБ и т.п.). И что не менее важно ‐ спроектированный таким образом ресторан будет полностью соответствовать принципам поточности технологических процессов производства.
А. Заказчик передает специалистам нашей компании планировки здания и излагает свои пожелания по качеству оборудования и формату предприятия
Б. Наши специалисты оказывают заказчику помощь в правильном оформлении задания на проектирование, с изложением всех основных технических характеристик, цепочки поступления, хранения и обработки продуктов, технологии приготовления блюд, и другие параметры проектируемого предприятия; на основе задания на проектирование (Технического задания) мы разрабатываем варианты планировочных решений с оформлением в виде экспликации помещений
Г. Заказчик выбирает версию технического решения
Д. Заказчик излагает планы и пожелания относительно дизайна интерьера, требующие учета в технологическом проекте
Е. На переговорах с Заказчиком наши специалисты совместно находят наилучший и устраивающий обе стороны вариант дальнейшей работы в части финансов и логистики проекта.
Проектные работы
А. Заказчиком заключает контракт на проектирование. К контракту прилагается календарный план исполнения и техническое задание на проектирование.
Б. Вместе с заказчиком наши специалисты оказывают содействие по согласованию технического задания в Роспотребнадзоре (ранее СЭС).
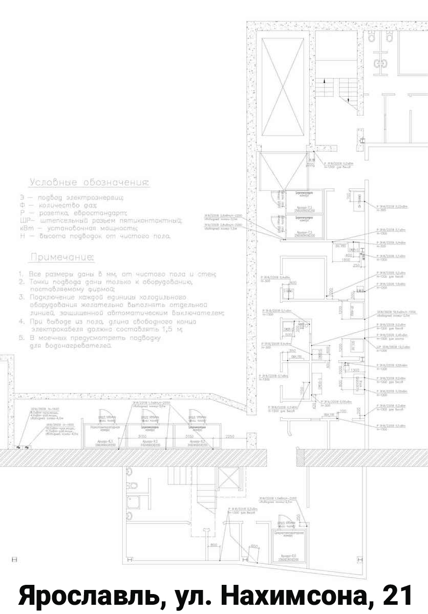
В. Наши специалисты готовят рабочую документацию, в которой отражены схемы вывода в помещения инженерных коммуникаций (водоснабжение, канализация, вентиляция, электроснабжение).
Г. Основываясь на утвержденной рабочей документации, мы уточняем спецификации торгово‐технологического оборудования и материалов, необходимых для его монтажа.
Д. Мы передаем заказчику сделанные нами работы по акту приемки‐сдачи.
Технологический проект подлежит обязательному согласованию в Роспотребнадзоре. Комплект документации включает планировки помещений с расстановкой технологического оборудования и мебели, чертежи с привязками оборудования к инженерным коммуникациям, спецификации технологического оборудования и мебели, пояснительную записку, а также лицензию, либо разрешение на допуск к работам по системе СРО.
|
|
|
ОСНАЩЕНИЕ ПРОФЕССИОНАЛЬНОЙ КУХНИ
Комплексное оснащение с помощью специалистов компании «Русский Проект»® - это грамотно сформированная, оснащенная современным технологическим оборудованием кухня Вашего ресторана, кафе или бара.
Огромный опыт специалистов компании «Русский Проект»® позволяет нам каждый раз, от проекта к проекту подбирать оптимальную технологическую конфигурацию. Каждая созданная нами профессиональная кухня – это тщательно выверенный баланс регулярного объема производства и банкетного режима работы, компактности и производительности, узкой специализации оборудования и его универсальности, цены и качества.
В ассортименте нашей компании полный спектр профессионального оборудования от надежных производителей из Европы, США, Азии, России и стран СНГ:
тепловое,
холодильное,
электромеханическое,
нейтральное -
абсолютно все, что необходимо для самой современной профессиональной кухни.
ПРОФЕССИОНАЛЬНАЯ ПОСУДА
Высокий класс отеля или ресторана в том числе проявляется и в сервировке стола.
Профессиональная посуда должна соответствовать одновременно многим требованиям, которые зачастую противоречат друг другу: красота и практичность, современность и долговечность, уникальность и заменяемость. Мы поможем вам найти золотую середину: в нашем ассортименте – коллекции профессиональной посуды от самых известных производителей со всего мира: Словения, Чехия, Германия, Бельгия, Китай…
Какой бы ни была кухня Вашего ресторана: национальная или классическая, домашняя, традиционная еда, ультрасовременная молекулярная фьюжн, - мы поможем подчеркнуть концепцию Вашего ресторана с помощью сервировки, приборов и важных мелочей.
НАШЕ ПРЕДЛОЖЕНИЕ:
- Столовая посуда из фарфора и стекла
- Наплитная посуда, кухонные приборы, противни и формы для выпечки
- Столовые приборы из стали и серебра
- Бокалы и фужеры из хрусталя и стекла
- Посуда и приборы для сервировки шведского стола
- Интерьерные винные шкафы и прилавки
- Оборудование для барных стоек
- Сервировочные тележки
МЕБЕЛЬ ДЛЯ РЕСТОРАНА, БАРА И НОМЕРНОГО ФОНДА
Мебель – важнейшая часть интерьера. Элегантная мебель в ресторане поможет создать его уникальную атмосферу; барные стойки и стойки ресепшн – центральные элементы в пространстве холла, бара и лобби; а удобная мебель в номере – залог комфорта и удовлетворенности клиента.
Компания «Русский Проект»® всегда готова к комплексным поставкам мебели для отелей, гостиниц, баров и ресторанов.
Мы предлагаем широкий выбор, товар от проверенных поставщиков и удобные условия сотрудничества. Кроме того, мы готовы изготовить мебель по индивидуальным проектам.
НАШЕ ПРЕДЛОЖЕНИЕ:
Кафе в "Гастроном №1"
Кафе в Развлекательном комплексе «Русь»
Ресторан в Дачном отеле "Семигорье"
Ресторан в Парк-отеле «Шереметьев»
ОСНАЩЕНИЕ МАГАЗИНОВ, АЗС, ГАСТРОНОМОВ, ПРОДУКТОВЫХ РЫНКОВ, СУПЕРМАРКЕТОВ, ГИПЕРМАРКЕТОВ
За более чем двадцатилетнюю историю компании наши специалисты спроектировали и оснастили более 700 объектов торговли на территории России и ближнего зарубежья.
Нашими клиентами являются самые крупные операторы на рынке ритейла: Х5 GROUP («Пятерочка», «Перекресток», «Карусель»), «Магнит», «Роснефть», «Газпромнефть» и другие. Помимо этого, мы имеем богатый опыт оснащения продовольственных рынков.
В нашем ассортименте - оборудование для любого торгового объекта «под ключ»: холодильное, торговое, кассовое, нейтральное, оборудование для кондитерского и кулинарного производства, оборудование для хранения товаров.
Наши специалисты обладают уникальным опытом в проектировании предприятий торговли:
технологических, складских , вспомогательных и административно-бытовых помещений, торгового зала, расчета центральной холодильной машины.
Гастроном №1 «Торговое товарищество братьев Елисеевых»Супермаркет "Октябрьский"
Сеть магазинов «КАК РАЗ»
Супермаркет «Лотос»
Сеть АЗС Газпромнефть
Сеть магазинов "ЯР.МАРКА"
Сеть магазинов «Лесная поляна»
Гипермаркет «Вестер Гипер»
Супермаркет «Вестер»
Универсам «Север-3»
Универсам «Экстра»
Гастроном «АРС»
НАШИ УСЛУГИ ДЛЯ НАПРАВЛЕНИЯ НОНФУД
- Разработка дизайн-проекта
- Индивидуальный подбор оборудования и материалов оформления
- Разработка и изготовление торгового оборудования по эскизам заказчика
- Доставка и монтаж торгового оборудования
- Консультирование по экспозиции
- Консультирование по освещению
- Консультирование по экспозиции существующего оборудования
- Гарантийное обслуживание
Магазин автозапчастей
Магазин «Алмаз»
ПОЛНОЕ ОСНАЩЕНИЕ ЛЮБОЙ СТОЛОВОЙ
Компания «Русский Проект»® является признанным лидером в области оснащения современным оборудованием пищеблоков школьных столовых по всей России благодаря многолетнему опыту и высокому профессиональному уровню специалистов компании в реализации экспериментальных проектов по совершенствованию организации питания в общеобразовательных учреждениях.
Перед модернизацией любого пищеблока проводится большая работа по проектированию, выбору необходимого списка оборудования.
Компания «Русский Проект»® оснащает школьные столовые любого типа:
Школьная базовая столовая (ШБС).
Отличительная особенность — столовая работает на сырье (полный цикл приготовления пищи)
Доготовочная столовая.
К данному типу относятся столовые, работающие на полуфабрикатах разной степени готовности.
Буфетная столовая.
Столовые этого типа производят только раздачу готовых обедов, порционных блюд.
Школьные столовые
|
|
|
|
КОМПЛЕКСНОЕ ОСНАЩЕНИЕ ПЕКАРЕН, КОНДИТЕРСКИХ ЦЕХОВ И ПИЦЦЕРИЙ
Мы предлагаем технологическое оборудование и необходимый инвентарь для предприятий различных форматов:
- участок выпечки в торговом зале
- пекарня-кафе, кафе-кондитерская, пиццерия
- цех малой или средней мощности
- хлебозавод
Спектр поставляемого оборудования охватывает практически все технологические этапы
- Хранение, подготовка и дозирование муки и дополнительного сырья
- Замес теста и сбивание кондитерских масс
- Разделка, формовка и слоение теста
- Окончательная расстойка и выпечка
- Нарезка хлеба
- Производство берлинеров (донатсов)
Магазин-кулинария "Техас"
Пекарня Супермаркета ЛОТОС
Пекарня Семинария Русской Правлославной Церкви
ОСНАЩЕНИЕ ПРАЧЕЧНОЙ
Организация бытовых прачечных на сегодняшний день является перспективным развивающимся рынком с невысокой конкуренцией. Помимо коммерческих прачечных широк перечень сфер бизнеса, где прачечная необходима для экономии и обслуживания основной деятельности: гостиницы, рестораны, фитнес-клубы, производства и социальные объекты. Специалисты компании «Русский Проект»® помогут Вам профессионально и грамотно подобрать оборудование для быстрой окупаемости и высокой доходности прачечной.
Мы предлагаем прачечное оборудование от лучших европейских поставщиков ELECTROLUX, LAVARINI (Imesa) и др.
НАШЕ ПРЕДЛОЖЕНИЕ:
- Стиральные машины: Малогабаритные, Низкоскоростные, Стирально-отжимные высокоскоростные, Барьерные
- Сушильные машины: Малогабаритные, Промышленные
- Гладильные машины: Катки, Каландры
- Пароманекены, Гладильные столы
- Упаковочное оборудование и конвейеры
ПРИМЕР:
Прачечные при Перинатальных центрах: г. Щелково, г. Коломна, г. Наро-Фоминск
ЦЕНТРАЛЬНЫЕ ХОЛОДИЛЬНЫЕ МАШИНЫ, ХОЛОДИЛЬНЫЕ КАМЕРЫ
На протяжении всего срока существования компания осуществляет постоянный контроль ситуации на рынке холодильных установок региона, что позволяет ей длительное время оставаться в числе лидеров по объемам установленного оборудования и осуществления полного комплекса в области его монтажа, сервисного обслуживания и ремонта.
«Русский Проект»® предоставляет услуги по комплексному сервисному обслуживанию холодильного и технологического оборудования как отечественных, так и зарубежных производителей различных степеней сложности для любого магазина (включая супермаркеты с централизованной системой холодоснабжения), услуги по разовым вызовам мастеров, а так же услуги по продаже запасных частей для холодильного и технологического оборудования.
Профессиональный уровень специалистов компании в области проектирования, монтажа, ремонта и сервисного обслуживания холодильного оборудования позволяет с высокой эффективностью проводить работы на всех стадиях выполнения заказов, начиная с проектных работ и заканчивая послегарантийным, сервисным обслуживанием оборудования. Компания имеет в своем распоряжении качественную техническую базу и оснащена всем необходимым монтажным и диагностическим оборудованием.
На складе в Ярославле находится постоянно пополняемый комплект запасных частей и расходных материалов, необходимых для поддержания непрерывной работы торгового оборудования, находящегося на обслуживании, и для проведения разовых платных ремонтов.
Сервисная служба осуществляет круглосуточную техническую поддержку и обслуживание клиентов компании. Работы по сервисному обслуживанию выполняются качественно и быстро. На линии работает четыре дежурные машины с необходимым перечнем запасных частей, фреона, инструмента, переносным сварочным постом для устранения любых аварийных ситуаций.
Передача вызовов осуществляется через диспетчеров как в рабочее время, так и нерабочее, а также в выходные и праздничные дни. В компании реализуется клиентоориентированный подход.
В настоящее время специалистами нашей организации обслуживаются такие объекты, как:
- гипермаркеты: Ашан (г. Ярославль и г. Иваново), Лента (г. Ярославль);
- крупные супермаркеты Лотос, Центр-7, Верный, Октябрьский, Гастроном №1;
- сеть АЗС Роснефть (Ярославская и Костромская области);
- магазины Ярославский Бройлер, Атрус;
- фармацевтические предприятия Тева, Такеда, Р-Фарм и др.






























