Проекты и решения |
|
| Предприятия: |
|
|
|||||||||||||||
Супермаркеты "Лотос" предлагают только качественные и доступные продукты всех ценовых категорий. Магазины располагаются во всех районах города Ярославля.
Филиал компании «Русский Проект»® в г. Ярославле выстроил уже долгие и плодотворные взаимоотношения с сетью «ЛОТОС». В 2016 году был выигран тендер на проектирование и поставку торгового-технологического оборудования для магазина и пекарни.
Первый этаж площадью 760 м² нового здания был отдан под супермаркет. Магазин ориентирован на обширный ассортимент самых различных товаров известных мировых брендов и отечественных марок. Это разнообразные продукты питания и промышленные товары. Проект выполнен на оборудовании российского производителя MAGMA. Особенность данного проекта - использование горок пристенных с внешним и внутренним углом.
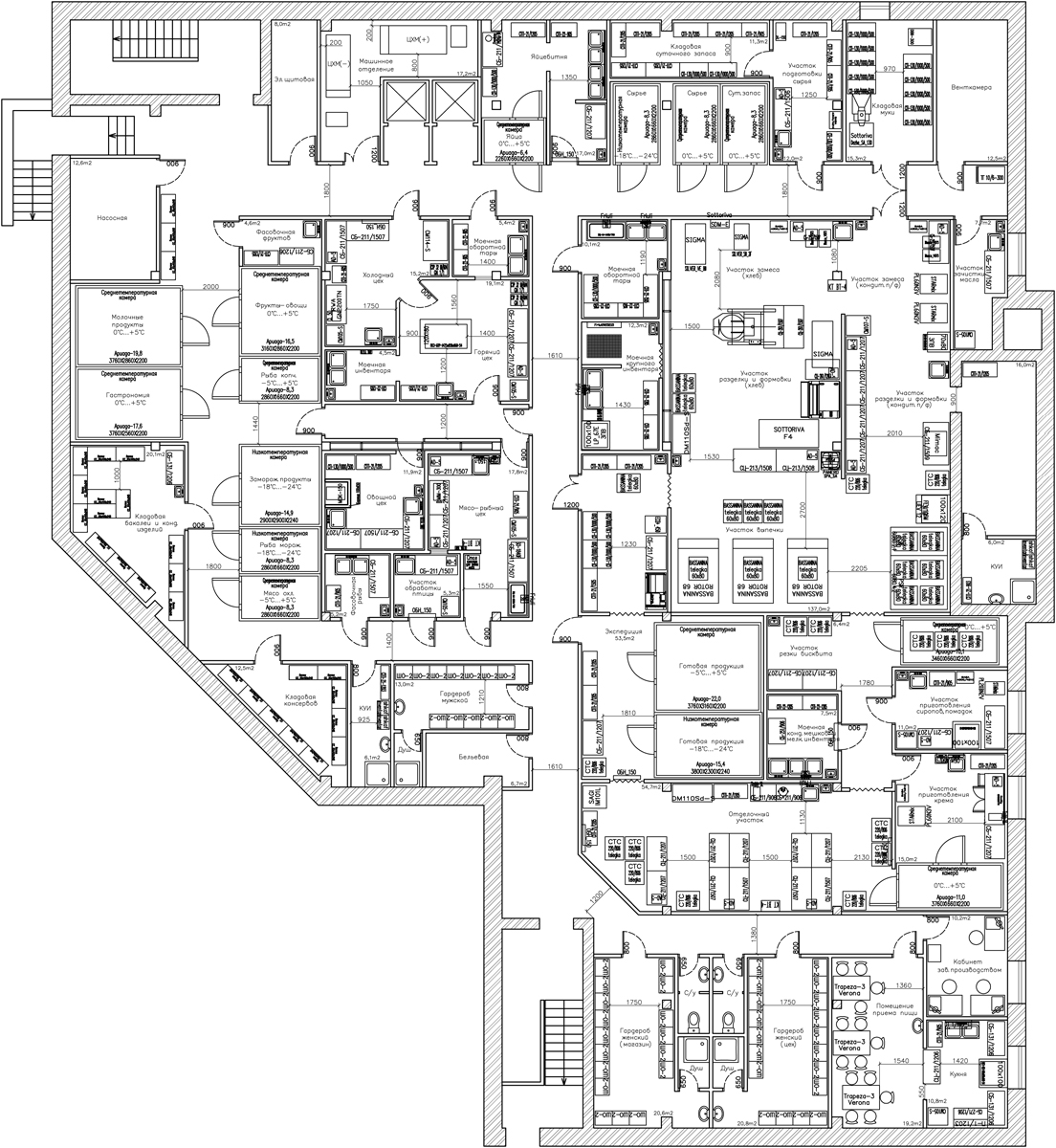
В связи с ростом спроса на хлебобулочные и кондитерские изделия собственного производства, было решено выделить площади для централизованной выпечки. Это решение обусловлено экономией средств на персонал, электричество и способствует стандартизации качества выпускаемой продукции.
Нулевой этаж нового здания был отдан под производственные цеха общей площадью 1165 м² и обеспечивающие потребности 6 супермаркетов. Сердцем цеха выпечки стало оборудование Итальянского бренда Bassanina. В связи с высокой надежностью, приемлемой ценой поставлены две расстоечные камеры - 1 и 2-х дверные, 3 печи ротационных Bassanina Rotor 68. Это оборудование великолепно справляется, как с выпечкой хлебов различных сортов, так и производством мелкоштучных изделий. В настоящий момент, пекарня «ЛОТОС» обеспечивает потребности супермаркетов не только в хлебобулочных и кондитерских изделиях, но и принимает индивидуальные заказы на кондитерские изделия.
ПРОЕКТ:
|
|
|
РЕШЕНИЕ:



























