Проекты и решения |
|
| Предприятия: |
|
|
|||||||||||||||
Описание проекта
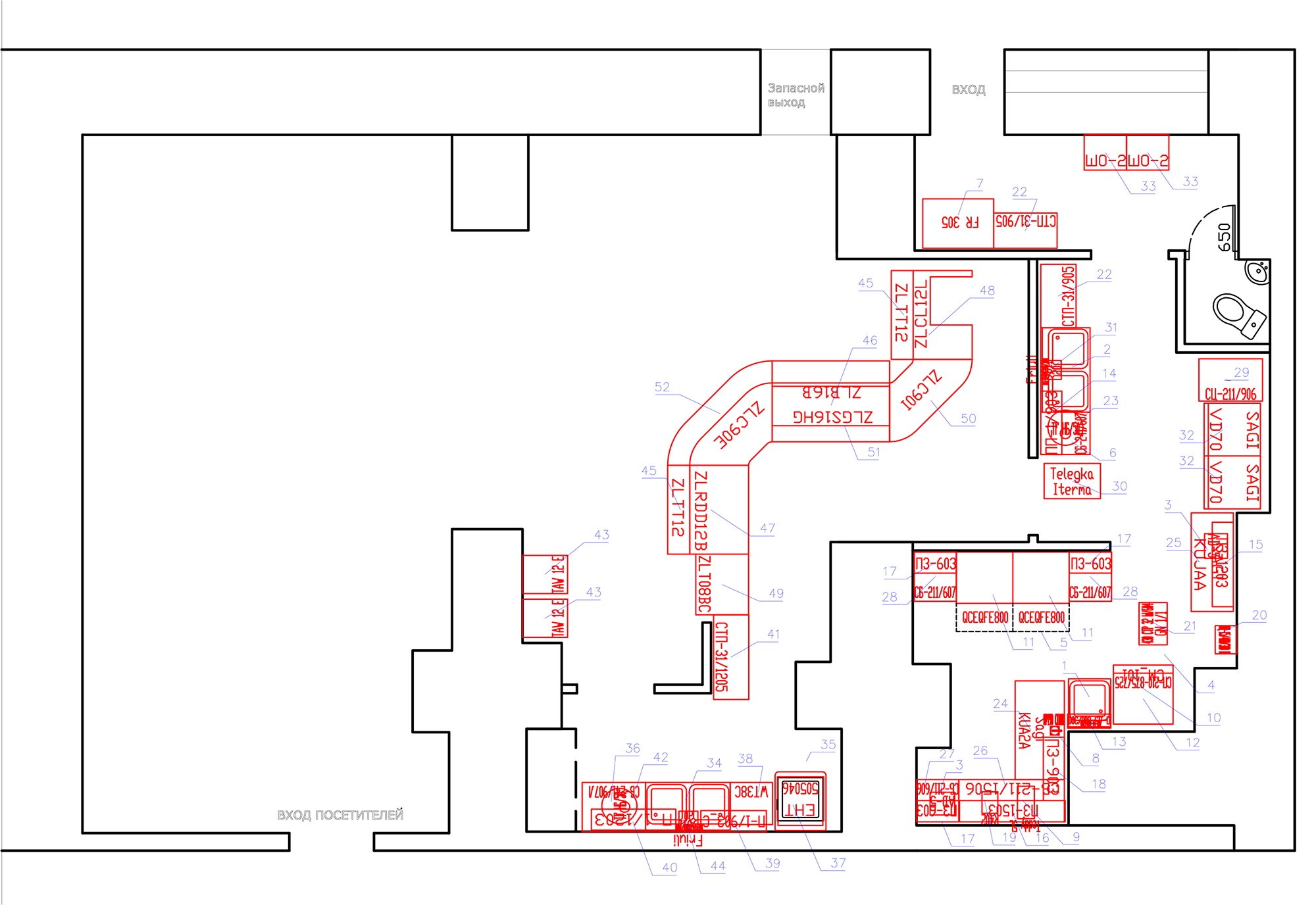
Специалисты компании «Русский Проект»® произвели оснащение надежным, высокотехнологичным оборудованием столовой для государственных служащих на 50 посадочных мест. В проекте было задействовано оборудование от российских и европейских поставщиков. Грамотно подобранное оборудование для предприятий общественного питания позволяет оптимизировать расходы на его содержание и обслуживание, при этом важно, что качество приготовленных блюд остаются на высоком уровне.
В проекте использовано оборудование:
- Electrolux (Италия) — две 4х конфорочные плиты 700 серии, купольная посудомоечная машина и линия раздачи - эргономичная, стильная линия хорошо вписывается в интерьер, поддерживает температуру готовых блюд, сохраняя их не только свежими и визуально привлекательными.
- RATIONAL ® (Германия) — пароконвектомат COMBIMASTER 101 PLUS.
- Angelo Po (Италия) — холодильный шкафы GD70.
- «Итерма» (Россия) — нейтральное оборудование.
- T&T (Россия) - столешницы.
- GABER (Италия) - стулья.
ПРОЕКТ:
РЕШЕНИЕ:
























