Проекты и решения |
|
| Предприятия: |
|
|
|||||||||||
Организация пекарни на предприятии торговли — путь к увеличению продаж.
Отличительной особенностью предприятий розничной торговли, при высокой конкуренции, является организация в магазинах собственного производства полуфабрикатов и готовых изделий. Одно из самым перспективных направлений - это пекарня с производством хлебобулочных изделий.
Аромат свежей выпечки в магазине всегда привлекает покупателей, подталкивая их к незапланированным покупкам, в связи с этим способствует увеличению общей выручки в магазине. Очень сложно пройти мимо стеллажей с выложенным, свежеиспеченным хлебом.
А если покупатель имеет возможность наблюдать за процессом приготовления, то это еще сильнее способствует совершению покупок.
Ассортимент готовой хлебопекарной продукции может быть разнообразный, начиная от булочек и заканчивая производством тортов. Но, как правило, повышенные требования к производству кремовых изделий ведут к низкой рентабельности, что заставляет отказаться от их изготовления в пекарне при магазине в пользу производства хлеба и булочек.
Площадь занимаемая под пекарню может быть различной, в зависимости от планируемой производительности и ассортимента, а также общей площади магазина.
- всегда иметь свежую выпечку «точно в срок»
- оперативно регулировать ассортимент выпускаемой продукции, в зависимости от спроса покупателей
- выпекать тот объем продукции, который необходим на данный момент
- не зависеть от поставщиков готовых изделий
Организация пекарни на предприятии торговли, PDF, ~3.12 Мб
Технологические процессы и оборудование необходимое для производства с полным циклом:
Просеивание муки. Просеивание муки необходимо для очистки от посторонних примесей, кроме того улучшаются хлебопекарные свойства муки, и соответственно качество готовых изделий. Применяются мукопросеиватели.
Замес теста. Для замеса теста используются тестомесы или миксеры.
Разделка и формовка теста. Данный процесс заключается в делении теста на части и формовании полуфабрикатов. Используется такое оборудование как: тестоделители- округлители, тестораскатывающее, тестозакатывающее и формующее оборудование.
Расстойка полуфабрикатов. Необходима для насыщения полуфабрикатов кислородом, что значительно улучшает качество готовых изделий. Используются расстоечные шкафы.
Выпечка. В зависимости от производительности пекарни, используются печи различных типов.
Для минимальной производительности подойдет конвекционная печь, для средней и большой производительности ротационные и подовые печи.
Кроме основного оборудования для производства хлебобулочных изделий, необходимо вспомогательное оборудование и инвентарь.
Компания «Русский Проект»® предоставляет услуги по консультированию, проектированию, подбору оборудования, монтажу, пуске-наладке и сервисному обслуживанию.
Предлагая оборудование разной производительности и ценового уровня, мы можем предоставить готовый бизнес-проект как небольшому магазину, так и сетевым гипермаркетам с высокой проходимостью.
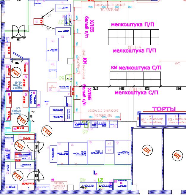
Ниже приведены примеры готовых решений.
Гипермаркет Лента
|
|
|
Супермаркет Октябрьский
|
|
||||||||||||||||||||||||||||||||||||||||||||||||||||||||||||||||||||
|
|||||||||||||||||||||||||||||||||||||||||||||||||||||||||||||||||||||
|
|||||||||||||||||||||||||||||||||||||||||||||||||||||||||||||||||||||
|
|||||||||||||||||||||||||||||||||||||||||||||||||||||||||||||||||||||
Смеси и ингредиенты — ваши помощники в производстве
Для улучшения качества выпекаемых изделий рекомендуется использование готовых смесей и концентратов. Использование данных ингредиентов обеспечивает изделиям стабильное качество, равномерную пористую структуру, продление срока сохранения свежести. А также значительно упрощает производственный процесс, допускает при необходимости прерывание технологического цикла выпечки.
Компанией «Русский Проект»® совместно с партнером-поставщиком ингредиентов и смесей Zeelandia Ost-West проводятся мастер-классы, на которых вы можете оценить удобство и надежность работы оборудования, а также качество выпекаемых изделий.
Компания Zeelandia Ost-West является мировым лидером по производству смесей и ингредиентов, имеет свои производственные мощности в 20 странах, в том числе и в России, что обеспечивает бесперебойные поставки сырья при европейском качестве.
Вашему вниманию будут предложены готовые рецепты и решения, разработанные персонально для Вашего бизнеса.
Ассортимент выпекаемых изделий
|
|
Планетарные миксеры Bear Varimixer
|
|
Компания Bear Varimixer является ведущим мировым производителем планетарных миксеров. Высокое качество миксеров, широкая универсальность, длительный срок службы, гигиеничность и легкость в эксплуатации. Поверхность корпуса всех машин как снаружи, так и внутри покрыта специальным противоударным акриловым порошком, который обеспечивает еще и легкую чистку. |
|
Миксер планетарный BEAR VARIMIXER TEDDY 5L |
Миксер планетарный BEAR VARIMIXER AR40 VL-1 |
| Модель | Габариты, мм | Вес нетто, кг | Напряжение, В | Мощность, кВт | Скорость, об/мин |
|---|---|---|---|---|---|
|
|
570х915х1210 | 180 | 380 | 1,1 | 53-294 |
|
Миксер планетарный BEAR VARIMIXER TEDDY 5L белый цена 205 896 руб. |
462х240х400 | 18 | 220 | 0,2 | 78-422 |
Тестомесильные машины SIGMA серии SILVER с фиксированной дежой
|
Тестомесы SILVER могут использоваться как в небольших производствах, так на промышленных предприятиях. Они оснащены одним или двумя двигателями, цифровыми таймерами, электронной или электромеханической панелью управления. Хорошо скругленное дно позволяет тестомесильной машине работать с массами менее 10% объема без изменения времени или качества замешиваемого теста. |
| Модель | Габариты, мм | Мощность, кВт | Вес, кг | Объём дежи, л | Мука, кг | Вода, л |
|---|---|---|---|---|---|---|
|
Тестомес SIGMA спиральный REDLINE 50 HD 3Ф цена 787 473 руб. |
530x920x1140 | 1.9/2.6 | 215 | 67 | 30 | 17 |
|
Тестомес SIGMA спиральный REDLINE/SILVER 60 HD 3Ф цена 902 112 руб. |
590x950x1140 | 1.9/2.6 | 250 | 84 | 35 | 21 |
|
Тестомес спиральный SIGMA SILVER VE 80 цена 2 944 110 руб. |
700x1120x1250 | 2/3.7 | 330 | 130 | 50 | 30 |
|
Тестомес спиральный SIGMA SILVER VE 120 цена 3 199 795 руб. |
780x1370x1450 | 2.6/4.8 | 490 | 170 | 75 | 45 |
|
Тестомес SIGMA спиральный REDLINE 160 HD цена 1 826 447 руб. |
910x1500x1600 | 3,7/7/75 | 690 | 230 | 100 | 60 |
|
Тестомес SIGMA спиральный SILVER VE 200 HD цена 4 711 782 руб. |
910x1570x1600 | 5,9/10,3 | 750 | 290 | 125 | 75 |
Полуавтоматические тестоделители-округлители Panero серии SPA RP SA
|
Широкий ассортимент итальянского оборудования PANERO для минипекарен и кондитерских позволит максимально упростить и облегчить организацию производственного процесса. Применяются при формовке мелкоштучных изделий.
Особенности:
|
|
Тестоделитель-округлитель PANERO SPA RP SA |
| Модель | Количество заготовок | Габариты, мм | Вес заготовок, г | Напряжение, В | Мощность, кВт | Объем теста, кг |
|---|---|---|---|---|---|---|
|
Тестоделитель-округлитель PANERO SPA RP M 15 цена 839 402 руб. |
15 | 640x640x1450 | 100-260 | 380 | 0,75 | 4 |
|
Тестоделитель-округлитель PANERO SPA RP M 22 цена 839 402 руб. |
22 | 640x640x1450 | 50-180 | 380 | 0,75 | 4 |
|
Тестоделитель-округлитель PANERO SPA RP M 30 цена 839 402 руб. |
30 | 640x640x1450 | 40-135 | 380 | 0,75 | 4 |
|
Тестоделитель-округлитель PANERO SPA RP M 30 S цена 839 402 руб. |
30 | 640x640x1450 | 25-90 | 380 | 0,75 | 2,7 |
Тестозакаточные и хлеборезательные машины JAC
|
|
Компания JAC является известным производителем хлебопекарного оборудования и производит различную технику под одноименной торговой маркой для хлебопекарной промышленности. Многие хлебопекарные предприятия в различных странах используют в своей работе именно оборудование JAC, отличающееся высоким качеством и надёжностью Оборудование JAC идеально подходит как для небольших пекарен, так и для крупных хлебопекарных производств. |
|
Тестозакаточная Машина JAC UNIC |
Хлеборез JAC DURO 450 |
| Модель | Габариты, мм | Высота со стендом, мм | Мощность, кВт | Напряжение, В | Вес, кг |
|---|---|---|---|---|---|
|
Тестозакаточная машина JAC UNIC цена 857 648 руб. |
963х737х702 | 1582 | 1,1 | 380 | 210 |
|
Хлеборез JAC DURO 450 11ММ цена 479 411 руб. |
690х750х1280 | - | 0,5 | 380 | 150 |
Конвекционные печи GIERRE
Электрические конвекционные печи с пароувлажнением для пекарни от фирмы GIERRE (Италия) выполнены из нержавеющей стали, имеют галогеновую подсветку рабочей камеры. Углы камеры закруглены для облегчения санобработки. Раскрывающийся стеклопакет дверцы даёт возможность очищать стёкла изнутри. Вентиляторы работают в двух направлениях для равномерной выпечки. Таймеры задают длительность тепловой обработки и цикла увлажнения. Поставляются с механической и электронной панелью управления.
|
|
|
|
Шкаф пекарский Baketek Fev 106 Liev 12 |
Шкаф пекарский Baketek Fev 166 |
| Наименование | Количество уровней | Размер противней, мм | Мощность/Напряжение, кВт/В | Габаритные размеры, мм |
|---|---|---|---|---|
|
|
5 | 400х600 | 7,9/380 | 995х975х777 |
|
|
9 | 400х600 | 1,4/220 | 860х590х912 |
|
Лист для пекарского шкафа GIERRE TEG 239 432X343 цена 3 909 руб. |
- | 432х343 | - | 432х343 |
|
|
- | 400X600 | - | 400X600 |
Ротационные печи MIWE roll-in e+
|
MIWE roll-in e+ пришла на помощь пекарям несколько лет назад как по заказу. Эта стеллажная печь, которая исключительно экономно расходует энергию, обеспечивая при этом самые лучшие результаты выпечки, стала настоящим событием в сфере разработок конвекционных печей. И благодаря постоянному усовершенствованию она остается лучшей в своем классе. Еще основательней был проработан вопрос энергоэффективности. Была создана повышенная энергоэффективность, которая позволила сократить финансовые расходы. |
Подовые печи MIWE СONDO
|
Лучшие результаты выпечки и широкий ассортимент выпекаемой продукции - все это возможно с печью MIWE condo даже на небольшой установочной площади. Неудивительно, что она пользуется популярностью по всему миру в пекарнях, филиалах, кондитерских, гостиницах, в сфере гастрономии, кетеринга или как мобильная хлебопекарная печь на различных мероприятиях. Благодаря ее модульной конструкции множеству доступных размерных вариантов, она может быть приспособлена к любым потребностям в производственных мощностях. В любом случае она может все. |
* Стоимость печей MIWE уточняется по запросу в зависимости от комплектации.
Вспомогательное оборудование
Вспомогательное оборудование подбирается исходя из размеров и конфигурации конкретного помещения. Компания «Русский Проект»® рада предложить вам изделия собственного производства завода ИТЕРМА. Производственные столы, моечные ванны, шпильки, стеллажи, вентиляционные зонты могут быть изготовлены как из стали AISI 304, так и AISI 430, имеют российские сертификаты качества и отвечают всем требованиям для работы на пищевых производствах.
|
|
|
|
Инвентарь
В любом, даже самом несложном производстве требуется сопутствующий инвентарь.
Вашему вниманию будут предложены лучшие изделия российских и импортных производителей: SASA, PADERNO, MVQ, Blanco, Cambro. Martellato и т.д.
|
|
|
|
* Цены на вспомогательное оборудование и инвентарь предоставляются по запросу, после уточнения необходимых позиций
Наши специалисты — это опытные эксперты в своем деле, которые помогут быстро и качественно наладить Ваш бизнес.



















































