TELEDOOR - Двери холодильные и морозильные, Камеры, Ворота откатные, Стеллажи
Описание:
|
О компании
История компании Teledoor из немецкого города Мелле началась в 1986 году с изготовления холодильных и морозильных дверей. Предприятие развивалось благодаря интенсивному взаимодействию со своими клиентами, при этом был накоплен ценный опыт, непрерывно применяемый при производстве всего ассортимента продукции.
Продукцию Teledoor отличает высокое качество. В конструкторском отделе и на производстве применяется только новейшая техника. Таким образом создается основа для выпуска современных, ориентированных на будущее изделий.
Предприятие ставит перед собой претенциозные задачи, которые с успехом решаются, при этом применяются сложнейшие технические решения. Этим Teledoor завоевал себе устойчивое положение на глобальных рынках холодильной техники.
Сервисное обслуживание Teledoor начинается с первым телефонным звонком и не заканчивается с монтажом. Техническое сопровождение продукции силами собственных специалистов является нормой для компании.
Распашные двери (среднетемпературных помещений + 25°С / 0°С)
КТ 8 — одностворчатые
|
 |
Полотно двери:
толщина — 8 см, с фальцами, поверхность — листовой металл, наполнитель — пенополиуретан. По периметру снабжается высокоэластичным сменным резиновым уплотнением. При ширине светового проема свыше 140 см — вертикальный шов.
Стандартная рама(тип 1):
готовая к установке жесткая рама с пенополиуретановым наполнением. Снабжена отгибаемыми «серьгами» из оцинкованной стали для крепления к проему. В стандартную комплектацию входит порог из легкого металла, который может быть установлен в уровень с существующим полом.
Рама оснащается пластиковым холодопрерывающим профилем
Фурнитура «Servo 90»:
Рычаговый запор, внешние и внутренние поверхности которого выполняются из коррозионноустойчивых материалов. Запорное устройство может замыкаться на ключ и снабжено системой аварийного открывания. Накладные петли выполнены из нержавеющей стали в комбинации с высокопрочными пластмассами.
Поверхности:
Стандартно:
- хром-никелиевая нержавеющая сталь;
- «пищевой»алюминий;
- оцинкованная сталь с лаковым покрытием RAL9010.
Все поверхности оклеены защитной плёнкой, удаляемой после установки двери.
|
КТ 8 — двухстворчатые |
 |
Полотно двери:
толщина — 8 см, с фальцами, поверхность — листовой металл, наполнитель — пенополиуретан. По периметру снабжается высокоэластичным сменным резиновым уплотнением.
Стандартная рама(тип 1):
готовая к установке жесткая рама с пенополиуретановым наполнением. Снабжена отгибаемыми «серьгами» из оцинкованной стали для крепления к проему. В стандартную комплектацию входит порог из легкого металла, который может быть установлен в уровень с существующим полом.
Рама оснащается пластиковым холодопрерывающим профилем.
Фурнитура «Servo 90»:
Рычаговый запор, внешние и внутренние поверхности которого выполняются из коррозионноустойчивых материалов. Запорное устройство может замыкаться на ключ и снабжено системой аварийного открывания. Накладные петли выполнены из нерж. стали в комбинации с высокопрочными пластмассами. Запорные тяги — нерж. сталь, рукоятка — латунь хромированная.
Поверхности:
Стандартно:
- хром-никелиевая нержавеющая сталь;
- «пищевой» алюминий;
- оцинкованная сталь с лаковым покрытием RAL9010.
Все поверхности оклеены защитной плёнкой, удаляемой после установки двери.
|
Распашные двери (низкотемпературных помещений +25°С / -30°С)
GT 12 — одностворчатые |
 |
Полотно двери:
толщина — 12 см, с фальцами, поверхность — листовой металл, наполнитель — пенополиуретан. По периметру снабжается высокоэластичным сменным резиновым уплотнением. При ширине светового проема свыше 132 см. — вертикальный шов.
Стандартная рама(тип 1):
готовая к установке жесткая рама с пенополиуретановым наполнением. Снабжена отгибаемыми «серьгами» из оцинкованной стали для крепления к проему. В стандартную комплектацию входит порог из легкого металла, который может быть установлен в уровень с существующим полом. Снабжена системой электроподогрева прилегающих к уплотнению поверхностей рамы и порога, с термореле от перегрева. Прямое подключение на 220 В.
Рама оснащается пластиковым холодопрерывающим профилем.
Фурнитура «Servo 90»:
Рычаговый запор, внешние и внутренние поверхности которого выполняются из коррозионноустойчивых материалов. Запорное устройство может замыкаться на ключ и снабжено системой аварийного открывания. Накладные петли выполнены из нержавеющей стали в комбинации с высокопрочными пластмассами.
Поверхности:
Стандартно:
- хром-никелиевая нержавеющая сталь;
- «пищевой» алюминий;
- оцинкованная сталь с лаковым покрытием RAL9010.
Все поверхности оклеены защитной плёнкой, удаляемой после установки двери.
|
GT 12— двухстворчатые |
 |
Полотно двери:
толщина — 12 см, с фальцами, поверхность — листовой металл, наполнитель — пенополиуретан. По периметру снабжается высокоэластичным сменным резиновым уплотнением. Электроподогрев неподвижной створки в месте контакта с распашной, с термореле от перегрева. Прямое подключение на 220 В.
Стандартная рама(тип 1):
готовая к установке жесткая рама с пенополиуретановым наполнением. Снабжена отгибаемыми «серьгами» из оцинкованной стали для крепления к проему. В стандартную комплектацию входит порог из легкого металла, который может быть установлен в уровень с существующим полом. Снабжена системой электроподогрева прилегающих к уплотнению поверхностей рамы и порога, с термореле от перегрева. Прямое подключение на 220 В.
Рама оснащается пластиковым холодопрерывающим профилем.
Фурнитура «Servo 90»:
Рычаговый запор, внешние и внутренние поверхности которого выполняются из коррозионноустойчивых материалов. Запорное устройство может замыкаться на ключ и снабжено системой аварийного открывания. Накладные петли выполнены из нержавеющей стали в комбинации с высокопрочными пластмассами. Запорные тяги — нерж. сталь, рукоятка — латунь хромированная.
Поверхности:
Стандартно:
- хром-никелиевая нержавеющая сталь;
- «пищевой» алюминий;
- оцинкованная сталь с лаковым покрытием RAL9010.
Все поверхности оклеены защитной плёнкой, удаляемой после установки двери.
|
Среднетемпературные люки +25°С / 0°С
Тип KL 8 |
 |
Полотно люка:
толщина — 8 см, с фальцами, наполнитель — пенополиуретан. По периметру высокоэластичное сменное резиновое уплотнение.
Рама:
готовая к установке рама с пенополиуретановым наполнением. Снабжена отгибаемыми «серьгами» из оцинкованной стали для крепления к проёму.
Фурнитура «Servo 90»:
При размерах светового проёма по высоте более 80 см — рычаговый запор, внешние и внутренние поверхности из коррозионноустойчивых материалов, возможно закрывание на ключ, снабжён системой аварийного открывания. Накладные петли выполнены из нержавеющей стали в комбинации с высокопрочными пластмассами. При размерах светового проёма по высоте до 80 см — упрощённое запорное устройство без системы аварийного открывания.
Поверхности:
Стандартно:
- хром-никелиевая нержавеющая сталь;
- «пищевой» алюминий;
- оцинкованная сталь с покрытием RAL 9010.
Все поверхности оклеены защитной плёнкой, удаляемой после установки люка.
|
Нестандартные исполнения:
- Дополнительная накладная рама для монтажа в стену из сэндвич-панелей
- Нестандартный цвет, типа RAL 9002, 7035
- Усиленное покрытие толщиной 150 mm
- Подогрев блочной рамы
- Клапан выравнивания давления в полотне люка
- Внутреннее открывание, система аварийного выхода со стороны петель
Световой проем, см | Установочный размер, см | Световой проем, см | Установочный размер, см |
50 x 40 | 70 x 60 | 70 x 90 | 90 x 110 |
50 x 50 | 70 x 70 | 80 x 60 | 100 x 80 |
50 x 60 | 70 x 80 | 80 x 70 | 100 x 90 |
50 x 70 | 70 x 90 | 80 x 80 | 100 x 100 |
60 x 40 | 80 x 60 | 80 x 90 | 100 x 110 |
60 x 50 | 80 x 70 | 80 x 100 | 100 x 120 |
60 x 60 | 80 x 80 | 90 x 70 | 110 x 90 |
60 x 70 | 80 x 90 | 90 x 80 | 110 x 100 |
60 x 80 | 80 x 100 | 90 x 90 | 110 x 110 |
70 x 50 | 90 x 70 | 90 x 100 | 110 x 120 |
70 x 60 | 90 x 80 | 90 x 110 | 110 x 130 |
70 x 70 | 90 x 90 | 100 x 80 | 120 x 100 |
70 x 80 | 90 x 100 | 100 x 90 | 120 x 110 |
Тип GL 12
 |
Полотно люка:
толщина — 12 см, с фальцами, наполнитель — пенополиуретан. По периметру высокоэластичное сменное резиновое уплотнение.
Рама:
готовая к установке рама с пенополиуретановым наполнением. Снабжена отгибаемыми «серьгами» из оцинкованной стали для крепления к проёму. Комплектуется системой электроподогрева, прямое подключение на 220 В.
Фурнитура «Servo 90»:
При размерах светового проёма по высоте более 80 см — рычаговый запор, внешние и внутренние поверхности из коррозионноустойчивых материалов, возможно закрывание на ключ, снабжён системой аварийного открывания. Накладные петли выполнены из нержавеющей стали в комбинации с высокопрочными пластмассами. При размерах светового проёма по высоте до 80 см — упрощённое запорное устройство без системы аварийного открывания.
Поверхности:
Стандартно:
- хром-никелиевая нержавеющая сталь;
- «пищевой» алюминий;
- оцинкованная сталь с покрытием RAL 9010.
Все поверхности оклеены защитной плёнкой, удаляемой после установки люка.
|
Возможны опции:
- Дополнительная накладная рама для монтажа в стену из сэндвич-панелей
- Нестандартный цвет, типа RAL 9002, 7035
- Усиленное покрытие толщиной 150 mm
- Клапан выравнивания давления в полотне люка
- Внутреннее открывание, система аварийного выхода со стороны петель
- Исполнение для «шоковой» заморозки +25оС/-50оС, толщина изоляции 16 см
Откатные ворота (средне- и низкотемпературных помещений)
Тип KST 12 / GST 12 - одностворчатые - усиленное исполнение

Полотно ворот:
Стабильная сэндвич - конструкция с пенополиуретановым наполнением, плотность 50 кг/м3. Выполняется без мостиков холода как единый конструктивный элемент. Толщина 12 см. По периметру высокоэластичное сменное резиновое уплотнение.
Рама:
Плоская накладная рама. Металлопластиковая конструкция с пенополиуретановым наполнением. Порог из лёгкого металла устанавливается в уровень с существующим полом. При низкотемпературном исполнении встроенный электроподогрев рамы и порога, с термореле от перегрева. Прямое подключение на 220V.
Фурнитура:
Специальный профиль направляющей, при котором герметизация достигается автоматически, под действием собственного веса полотна. Ворота могут быть легко открыты одной рукой снаружи и изнутри. Все детали запорного устройства выполнены из высокопрочных, коррозионноустойчивых материалов. Стандартным образом личинка для замыкания на ключ.
Поверхности:
Стандартно:
- хром-никелиевая нержавеющая сталь;
- «пищевой» алюминий;
- оцинкованная сталь с лаковым покрытием RAL9010.
Все поверхности оклеены защитной плёнкой, удаляемой после установки двери.
Полотно ворот и рама не содержат деревянных деталей!
KSTGST12 - одностворчатые
Световой проем, см | Установочный размер, см | Световой проем, см | Установочный размер, см |
100 х 200 | 140 х 220 | 200 х 200 | 240 х 220 |
110 х 200 | 150 х 220 | 210 х 200 | 250 х 220 |
120 х 200 | 160 х 220 | 220 х 200 | 260 х 220 |
130 х 200 | 170 х 220 | 230 х 200 | 270 х 220 |
140 х 200 | 180 х 220 | 240 х 200 | 280 х 220 |
150 х 200 | 190 х 220 | 250 х 200 | 290 х 220 |
160 х 200 | 200 х 220 | 260 х 200 | 300 х 220 |
170 х 200 | 210 х 220 | 270 х 200 | 310 х 220 |
180 х 200 | 220 х 220 | 280 х 200 | 320 х 220 |
190 х 200 | 230 х 220 | 290 х 200 | 330 х 220 |
Внимание: Двери для наружного применения из легкого металла и нержавеющей стали - по запросу (опасность образования воздушных пузырей из-за прямого солнечного света).
Нестандартное исполнение
- Увеличение светового проема
- Уличные двери из нержавеющей стали
- Усиление изоляции до 160 мм
- Дополнительная рама для монтажа в стену из сэндвич-панелей
- Дополнительная рама для установки двухстворчатой ПВХ занавеси
- Дополнительная рама для установки ленточной ПВХ занавеси
- Проем для подвесного пути
- откидывающая дуга для откидного участка пути, нерж. сталь
- откидывающая пластина из нерж. стали либо 10 мм пластина из полиамида для откидного участка пути
- безразрывный подвесной путь (спец. рама с разрывной шиной):
- нерж. сталь
- легкий металл или оцинкованная стал
- Толщина металла 1,5 мм - наценка на дверь из нерж. стали
- Нестандартный цвет, типа RAL 9002, 7035
- Усиленное покрытие толщиной 150 mm
- Электропривод с устройствами автоматики. Двигатель 380В/50Гц, скорость открывания 0,4 м/сек. Все устройства управления 24В. Поставка комплектно с дистанционными выключателями и реле времени, позволяющим закрывать ворота после регулируемого временного промежутка. Ворота с автоматикой могут быть легко открыты руками
- Аварийный контакт на задней кромке ворот
- Тросовый выключатель, 1 шт.
- Устройство дистанционного радиоуправления, комплектуется одним передатчиком
- Автоматика для «внутренних» ворот
- Противопожарное исполнение Т 30 (без сертификата) – наценка на дверь из нерж. стали
- Внутреннее открывание, устройство аварийного выхода со стороны шины
- Двухстворчатое исполнение
- Защитная конструкция, горизонтальная, оцинкованная сталь
- Защитная конструкция, горизонтальная, нерж. сталь
- Защитная конструкция, вертикальная, оцинкованная сталь
- Защитная конструкция, вертикальная, нерж. сталь
- Наклонный козырек над направляющей шиной
- Защитные пластины толщиной 10 мм из белого ПЭ с фаской по краям
- Монтаж
Тип KSL 8 / GSL 8 - одностворчатые - легкое исполнение

Полотно ворот:
Стабильная сэндвич - конструкция с пенополиуретановым наполнением, плотность 50 кг/м3. Выполняется без мостиков холода как единый конструктивный элемент. Толщина 8 см. По периметру высокоэластичное сменное резиновое.
Фурнитура:
- легкое запорное устройство, из высокопрочных,
- коррозионноустойчивых материалов.
Стандартным образом личинка для замыкания на ключ.
Рама:
Плоская накладная рама 200 х 50 мм. При низкотемпературном исполнении встроенный электроподогрев рамы и порога, с термореле от перегрева. Прямое подключение на 220В.
Поверхности:
- Стандартно: хром-никелиевая нержавеющая сталь;
- «пищевой» алюминий; оцинкованная сталь с лаковым покрытием RAL9010.
Все поверхности оклеены защитной плёнкой, удаляемой после установки двери.
Нестандартное исполнение
- Увеличение светового проема по высоте
- Уличные двери из нержавеющей стали
- Дополнительная накладная рама
- Дополнительный внутренний профиль из нержавеющей стали, 2 мм
- Автоматикапо запросу
- Толщина металла 1,5 мм - наценка на дверь из нерж. Стали
- Нестандартный цвет, типа RAL 9002, 7035
- Усиленное покрытие толщиной 150мм
- Монтаж по запросу
Световой проем, см | Установочный размер, см | Световой проем, см | Установочный размер, см |
80 х 200 | 120 х 220 | 120 х 200 | 160 х 220 |
90 х 200 | 130 х 220 | 130 х 200 | 170 х 220 |
100 х 200 | 140 х 220 | 140 х 200 | 180 х 220 |
110 х 200 | 150 х 220 | | |
Внимание: Двери для наружного применения из легкого металла и нержавеющей стали - по запросу (опасность образования воздушных пузырей из-за прямого солнечного света).
Тип ВSТ 8 - негерметичное исполнение

Полотно ворот:
Стабильная сэндвич - конструкция с пенополиуретановым наполнением, плотность 50 кг/м3. Выполняется без мостиков холода как единый конструктивный элемент. Толщина 8 см. По периметру высокоэластичное сменное резиновое уплотнение.
Фурнитура: легкое запорное устройство, из высокопрочных, коррозионноустойчивых материалов. Стандартным образом без личинки для замыкания на ключ.
Рама: плоская накладная рама 100 х 50 мм, с пенополиуретановым наполнение, плотность ~ 50 кг/м3.
Поверхности:
Стандартно:
- хром-никелиевая нержавеющая сталь;
- «пищевой» алюминий;
- оцинкованная сталь с лаковым покрытием RAL9010.
Все поверхности оклеены защитной плёнкой, удаляемой после установки двери.
Нестандартное исполнение:
- Увеличение светового проема по высоте за каждые начатые 10 см
- Уличные двери из нержавеющей стали
- Дополнительная накладная рама
- Личинка для замыкания на ключ
- Автоматика
- Толщина металла 1,5 мм - наценка на дверь из нерж. стали
- Нестандартный цвет, типа RAL 9002, 7035
- Усиленное покрытие толщиной 150мм
- Монтаж (по запросу)
Световой проем,cм |
80 х 200 | 90 х 200 | 100 х 200 | 110 х 200 | 120 х 200 | 130 х 200 | 140 х 200 | 150 х 200 |
Внимание: Двери для наружного применения из легкого металла и нержавеющей стали - по запросу (опасность образования воздушных пузырей из-за прямого солнечного света).
Тип МК / МКЕ
 |
МК
Среднетяжёлая занавесь, предназначена для прохода персонала, допускается проезд лёгких погрузчиков. Полотна крепятся к раме без использования болтовых соединений, посредством двухстороннего жесткого канта на их краях. Возможность легкой замены изношенных полотен. Компактный возвратный механизм.
Исполнение:
Возвратный механизм: двухстороннего действия, легко регулируемая сила закрывания, возможность юстировки полотен по центру. Прикрывающие пружины встроены в раму полотен. Все металлические детали из оцинкованной стали. Угол открытия 2 х 90°; для установочной рамы 60 мм возможно 120°
Рама полотен: стальной профиль, рассчитан на внезапные динамические нагрузки (удары).
Установочная рама: Стальной оцинкованный профиль 80 х 10 мм. Без отверстий для крепления в строительных конструкциях.
Защита от коррозиивсе металлические детали оцинкованы.
МКЕ
Среднетяжелая занавесь с рамой полотен из нерж. стали. Для эксплуатации на производстве, где предъявляются особые требования к соблюдению санитарных норм, оптимальна для больниц, фармакологии и пищепереработки. Полотна крепятся к раме без использования болтовых соединений, посредством двухстороннего жесткого канта на их краях. Возможность легкой замены изношенных полотен.
Исполнение:
Возвратный механизм: двустороннего действия, встроен в раму полотен. Возможна юстировка полотен по центру.
Рама полотен: не имеет острых кромок и углов, выполняется из нерж. стали, с матовой шлифовкой.
Установочная рама: стабильный профиль нерж. стали 60 х 6 мм, поставляется комплектно с рамой полотен.
Защита от коррозии: все детали занавеси из хром-никелиевой нерж. стали.
|
Нестандартное исполнение:
- Увеличение высоты за каждые начатые 10 см
- Нерж. U-рама, состоит из 3-х частей (для установки в сэндвич-стену) для МК
- одностворчатые
- двухстворчатые
- Крепежные отверстия в раме
- Защитные конструкции для полотен и опорных подшипников
- ПВХ типа «К» до - 40°С
- Двухсторонние усилительные пластины из прозрачного
- ПВХ толщиной:
- 2 мм
- 3 мм
- 5 мм
Внешний размер по раме, см | Эффективный размер прохода, см | Внешний размер по раме, см | Эффективный размер прохода, см |
Одностворчатые |
80 х 200 | 70 х 200 | 110 х 200 | 100 х 200 |
90 х 200 | 80 х 200 | 120 х 200 | 110 х 200 |
100 х 200 | 90 х 200 | | |
Двухстворчатые |
130 х 200 | 110 х 200 | 200 х 200 | 180 х 200 |
140 х 200 | 120 х 200 | 210 х 200 | 190 х 200 |
150 х 200 | 130 х 200 | 220 х 200 | 200 х 200 |
160 х 200 | 140 х 200 | 230 х 200 | 210 х 200 |
170 х 200 | 150 х 200 | 240 х 200 | 220 х 200 |
180 х 200 | 160 х 200 | 250 х 200 | 230 х 200 |
190 х 200 | 170 х 200 | | |
Тип KHR-2 / 80
 |
Ленточные занавеси являются наиболее простым и экономичным решением, если речь идёт о промежуточной изоляции дверного проёма. Они могут предохранять от сквозняков, шума, холода, тепла, дыма и пыли и т.д. Кроме этого позволяют существенно сокращать потери энергии на охлаждение.
Занавеси ТЕЛЕДООР являются герметизирующим приспособлением и гарантируют необходимую безопасность при перемещении сквозь них.
- Занавесь герметизирует проем от балки до пола посредством перекрывающихся полос ПВХ.
- Отдельные полосы, являясь мягкими и гибкими, не могут травмировать водителя погрузчика либо повредить груз.
- Для занавесей используется прозрачный материал. Вы можете видеть и Вас могут увидеть, таким образом вероятность травматизма сведена к абсолютному минимуму.
Фурнитура:
каждая полоса закреплена на отдельных шарнирах, которые могут свободно качаться на неподвижной оси. Перекрытие отдельных полос составляет 90 мм. Все металлические детали - оцинкованная сталь.
Альтернативные способы крепления: «С» - сдвигаемые к одной стороне полосы; «Е» - жёсткое закрепление полос к балке.
Исполнение:
Материал полос: стандартным образом - прозрачный ПВХ, температурный диапазон применения от -200°С до +600°С. Тип «К» от -400°С до +400°С. Края отдельных полос закруглены. Для толщины материала 3 мм - крайние полосы завесы красные.
|
Распашные двери производственных помещений
Тип ВТ 6
 |
Полотно двери:
толщина - 6 см, с фальцами, поверхность - листовой металл, наполнитель - пенополиуретан. По периметру снабжается высокоэластичным сменным резиновым уплотнением.
Стандартная рама (тип 1):
готовая к установке жесткая рама с пенополиуретановым наполнением. Снабжена отгибаемыми «серьгами» из оцинкованной стали для крепления к проему. В стандартную комплектацию входит порог из легкого металла, который может быть установлен в уровень с существующим полом.
Уголковая рама:
в сборе с порогом, 70 х 70 х 7 мм, изготавливается из хром-никелиевой нерж. стали толщиной 1,5 мм, снабжена отгибаемыми «серьгами».
Двойная уголковая рама:
75 х 75 мм. Материал - хром-никелиевая нерж. сталь толщиной 2 мм, изготавливается по заказу для любой толщины стены.
Фурнитура:
Врезной замок с засовом из нерж. стали, личинка для замыкания на ключ, двусторонняя ручка нажимного действия. Накладные петли выполнены из нерж. стали в комбинации с высокопрочными пластмассами.
Поверхности:
Стандартно:
- хром-никелиевая нержавеющая сталь;
- «пищевой» алюминий;
- оцинкованная сталь с лаковым покрытием RAL9010.
Все поверхности оклеены защитной плёнкой, удаляемой после установки двери.
U-рама:
Для стен из сэндвич-панелей, выполнена из 1,5 мм хром-никелиевой нерж. стали в соответствии с толщиной изоляции.
Трубчатая рама:
Хром-никелиевая нерж. сталь 80 х 100 х 3 мм
|
ВТ 6 - полностью металлическое исполнение
Световой проем, см | Установочный размер, см | Световой проем, см | Установочный размер, см |
Одностворчатые |
70 х 200 | 90 х 210 | 110 х 200 | 130 х 210 |
80 х 200 | 100 х 210 | 120 х 200 | 140 х 210 |
90 х 200 | 110 х 210 | 130 х 200 | 150 х 210 |
100 х 200 | 120 х 210 | 140 х 200 | 160 х 210 |
Двухстворчатые |
120 х 200 | 140 х 210 | 190 х 200 | 210 х 210 |
130 х 200 | 150 х 210 | 200 х 200 | 220 х 210 |
140 х 200 | 160 х 210 | 210 х 200 | 230 х 210 |
150 х 200 | 170 х 210 | 220 х 200 | 240 х 210 |
160 х 200 | 180 х 210 | 230 х 200 | 250 х 210 |
170 х 200 | 190 х 210 | 240 х 200 | 260 х 210 |
180 х 200 | 200 х 210 | 250 х 200 | 270 х 210 |
Внимание: Двери для наружного применения из легкого металла и нержавеющей стали - по запросу (опасность образования воздушных пузырей из-за прямого солнечного света).
Нестандартное исполнение:
- Нестандартный цвет, типа RAL 9002, 7032
- Усиленное покрытие толщиной 150 m защитный профиль 20 х 100 мм из белого ПЭ с фаской по краям
- Защитные пластины толщиной 10 мм из белого ПЭ с фаской по краям
- Смотровое окно с двойным остеклением 40 х 60 см
- Противопожарное исполнение Т 30 (без сертификата)
- Полотно двери и рама из нерж. стали 1,2 мм
- Гидравлический прикрыватель двери
- Порог из нержавеющей стали
- Уголковая рама типа А из нерж. стали 75 х 75 мм - наценка на дверь из нерж. стали
- Увеличение светового проема по высоте
- Уличные двери из нержавеющей стали
- Замок для влажных помещений, механизм из нерж. стали, корпус -латунь
- Крепежное отверстие в торцевой части стандартной рамы
- Окно для подвесного пути, изолируется двойным разрезным резиновым фартуком.
- Размер отверстия 40 х 40см.
- Нерж. сталь
- Легкий металл либо оцинкованная сталь
- Съемная полоса 80 х 8 мм из нерж. стали в верхней части рамы
- Трубчатая рама из профиля нерж. стали 100 х 80 х 3 мм с ППУ наполнением - наценка на дверь из нерж. стали
- Толщина металла 1,5 мм - наценка на дверь из нерж. стали
- Уголковая рама из нерж. стали 70х 70 х 7 мм - наценка на дверь из нерж. стали
- U-рама из нерж. стали для монтажа в стену из сэндвич-панелей
- Дополнительная накладная рама для монтажа в стену из сэндвич-панелей
- Плоская рама 100 х 50 мм, без холодопрерывающего профиля
- Двойная уголковая рама типа А из нерж. стали для монтажа в кладку - наценка на дверь из нерж. стали
- Двойная уголковая рама типа В из нерж. стали для монтажа в кладку - наценка на дверь из нерж.стали
- Уголковая рама типа В из нерж.стали 75 х 75 мм - наценка на дверь из нерж. стали
- Монтаж
Качающиеся двери производственных помещений
Тип ВРТ 4 со смотровым окном
 |
Полотно двери:
толщина - 4 см, поверхность - листовой металл, наполнитель - пенополиуретан. По краю полотна крепится сменный резиновый профиль. Встроенное смотровое окно 40 х 60 см с противоударным остеклением.
Стандартная рама:
готовый к установке стальной профиль для закрепления в несущей стене, комплектуется набором крепежа.
Фурнитура:
Возвратный механизм двустороннего действия, петли из нержавеющей стали. Регулируемая сила прикрывания.
Поверхности:
Стандартно:
- хром-никелиевая нержавеющая сталь;
- "пищевой" алюминий;
- оцинкованная сталь с лаковым покрытием RAL9010.
Все поверхности оклеены защитной плёнкой, удаляемой после установки двери.
|
Внешний размер рамы, см | Эффективный размер прохода, см | Внешний размер рамы, см | Эффективный размер прохода, см |
Одностворчатые с одним окном |
86 х 200 | 70 х 200 | 116 х 200 | 100 х 200 |
96 х 200 | 80 х 200 | 126 х 200 | 110 х 200 |
106 х 200 | 90 х 200 | 136 х 200 | 120 х 200 |
Двухстворчатые с одним окном |
150 х 200 | 120 х 200 | 210 х 200 | 180 х 200 |
160 х 200 | 130 х 200 | 220 х 200 | 190 х 200 |
170 х 200 | 140 х 200 | 230 х 200 | 200 х 200 |
180 х 200 | 150 х 200 | 240 х 200 | 210 х 200 |
190 х 200 | 160 х 200 | 250 х 200 | 220 х 200 |
200 х 200 | 170 х 200 | 260 х 200 | 230 х 200 |
Нестандартное исполнение:
- Увеличение светового проема по высоте за каждые начатые 10 см
- Блочная рама с пенополиуретановым наполнением, тип поверхности как полотно двери
- Окно для подвесного пути, изолируется двойным разрезным резиновым фартуком. Размер отверстия 40 х 40 см.
- Нерж. сталь
- Легкий металл либо оцинкованная сталь
- Толщина металла 1,5 мм - наценка на дверь из нерж. стали
- Нестандартного цвет, типа RAL 9002, 7032
- Усиленное покрытие толщиной 150 ?m
- Защитный профиль 20 х 100 мм из белого ПЭ с фас- кой по краям
- Защитные пластины толщиной 10 мм из белого ПЭ с фаской по краям
- Рукоятка из нержавеющей стали, длина 300 мм
- Встроенный засов с ли чинкой для замыкания на ключ
- Дополнительное смотровое окно для двухстворчатых дверей 40 х 60 см
- U-рама из нерж. стали для монтажа в стену из сэндвич-панелей - наценка на дверь из нерж. стали
- Двойная уголковая рама типа А из нерж. стали для монтажа в кладку - наценка на дверь из нерж. стали
- Фиксатор нижний
- Монтаж
Тип Doorlen 20, со смотровым окном
 |
Полотно двери:
материал - полиэтилен, толщина 15 мм, гладкая легко очищаемая поверхность, выдерживает сильные динамические нагрузки (удары), но непригодна для проезда погрузчиков. Встроенное пластиковое смотровое окно 40 х 60 см.
Рама:
Готовый к установке стальной профиль для закрепления к несущей стене, комплектуется набором крепёжных материалов.
Фурнитура:
Возвратный механизм двустороннего действия. Регулируемая сила возврата.
Стандартный цвет:
Белый
Нестандартное исполнение
- Рамы нестандартных размеров и исполнений по запросу
- Фиксируемое приспособление встроено в возвратный механизм, предназначено для фиксации створки в открытом положении
|
Тип Softline
|
Полотно двери:
толщина – 40 мм, с фальцами
поверхность – листовой металл, наполнитель – пенополиуретан (не содержит фреонов). Хромированные петли из нержавеющей стали. Без нижнего уплотнения.
Рама:
уголковая, либо другие рамы из нержавеющей либо из оцинкованной, окрашенной стали.
Фурнитура:
Врезной замок с засовом из нерж. стали, личинка для замыкания на ключ, двухсторонняя ручка нажимного действия из нерж. стали.
Поверхности:
Стандартно:
- хром-никелиевая нержавеющая сталь с круговой матовой либо полосовой шлифовкой;
- оцинкованная сталь с лаковым покрытием RAL 9010.
Все поверхности оклеены защитной фольгой, удаляемой после установки двери.
|
Камеры
Тип «ISO 80» и «ISO 100»; «ISO 120» и «ISO 160»

Быстромонтируемые сборные средне- и низкотемпературные камеры фирмы Teledoor из пенополиуретановых сэндвич-панелей. Монтаж осуществляется без специального инструмента, изнутри камеры, что позволяет оптимально использовать объем помещений.
Изоляция:
Пенополиуретан, плотность: ~42 кг/м3.&
Коэффициент теплопроводности:
ISO 80 - 0,31 Вт/м2К; ISO 100 - 0,25 Вт/м2К;
ISO 120 - 0,21 Вт/м2К; ISO 160 - 0,16 Вт/м2К;
Поверхность:
снаружи и изнутри оцинкованная сталь с белым лаковым покрытием, оклеена защитной фольгой, удаляемой после монтажа.
Стыки:
Стыки элементов выполнены без металлических соединений (без мостиков холода), на боковых поверхностях элементов - специальный профиль шпонки или паза, дополнительно с внутренней и внешней стороны - эластичная уплотнительная полоса, для ISO 160 - двойной профиль шпонка-паз.
Соединения:
все элементы соединяются при помощи встроенных эксцентриковых крючковых замков, корпус и механизм которых выполняется из стабильных корозионноустойчивых материалов.
Пол:
внутренняя поверхность пола с пластиковым антискользящим покрытием.
Допустимая нагрузка на колесо: ~ 1000 Н.
Допустимое давление: ~ 20 кН/м2 (2000 кг/м2).
Дверь:
световой проём 80 х 180 см, 90 х 190 см или 100 х 200 см, правая или левая по желанию заказчика. Запорное устройство рычагового типа со встроенной системой аварийного выхода, предотвращающей запирание персонала внутри камеры. В низкотемпературных камерах с толщиной изоляции 120 мм и 160 мм коробка двери и порог снабжены электронагревательными элементами, кроме того камера оснащается клапаном выравнивания давления.
Размеры:
Минимальный размер камеры 120 х 120 см. Возможны увеличения размеров с шагом 30 см. Стандартные высоты камер 210, 240, 270 см. Высота камеры может изменяться с шагом 7,5 см.
Перегородки

Исполнение:
Самонесущие сэндвич-элементы. Перегородки выполняются с большой точностью согласно заданных размеров. Люки и двери устанавливаются в заводских условиях без дополнительных рамных конструкций.
Соединения:
Отдельные элементы соединяются при помощи эксцентриковых крючковых замков.
Изоляция:
Пенополиуретан, плотность ~ 42 кг/м3. Общая цена может быть получена путём суммирования цены перегородки с ценами дверей, окон и/или люков.
- Толщина изоляции
- Поверхность с двух сторон оцинков. сталь с белым покрытием
- Поверхность с двух сторон легкий металл с круговой шлифовкой
- Поверхность с двух сторон нерж. сталь с круговой шлифовкой
- Половые панели с антискользящим покрытием типа В
- Без крепежа, для ширины панели 120 см
Нестандартное исполнение:
- Усиленное лаковое покрытие толщиной 150 μm
- Теплоизоляционные окна, размер ~ 90 х 90см
- неоткрывающиеся (с нерж. рамой)
- Шпонко-пазочное соединение с эксцентриковыми замками стена/пол, стена/потолок и угловое соединение.
- открывающиеся / откидывающиеся окна
- Ширина панели 90 см
- Ширина панели 60 см
- Ширина панели 30 см
Панели
При помощи изоляционных сэндвич-панелей могут быть рационально и экономично построены средне- и низкотемпературные хранилища любого объёма.
Полная заводская готовность отдельных компонентов позволяет сильно сократить время и стоимость монтажа.
Изоляция
Жёсткая полиуретановая пена, ~ 40 кг/м3. Исполнение без фтор- хлор- углеводородных соединений (FCKW - frei). Материал на ~ 95% - закрыто ячеистый по классификации DIN 4102 класс В1 – трудновоспламеняемый.
Поверхности
Стандартное исполнение – с двух сторон оцинкованная окрашенная сталь 0.6 мм, с покрытием полиэстерным лаком 25 мкм, цвет RAL 9010 – белый, либо RAL 9001, RAL 9002, RAL 9006. Поверхности оклеены защитной плёнкой для перевозки и монтажа.
Фурнитура
Алюминиевый уголок, длина 6,0 м 40 х 40 х 2 мм, закруглённый
Алюминиевый уголок, длина 3,0 м 50 х 50 х 2 мм, закруглённый т
Потолочный подвес, состоит из алюминиевого Т-профиля 60 х 100 х 4 мм, с подвесными шпильками из нерж. стали с левой резьбой М 10, длина 6,0 м.Стяжная втулка М 10 х 80.
Половое покрытие тип В 100 с антискользящей накаткой, 1250 х 2500 х 12 мм.
| Описание | Размер А |
 | Половой U-профиль из оцинкованной стали, длина 4000 мм, с крепежными отверстиями. | 47
62
82
102
122
142 |
 |
Половой U-профиль алюминиевый, длина 4000 мм, с крепежными отверстиями.
| 47
62
82
102
122
142
|
 |
Декоративный U-профиль из оцинкованной стали с лаковым покрытием, длина 4000 мм с крепежными отверстиями.
| 47
62 82 102 122 142 |
 |
Половой уголок из оцинкованной стали,
длина 4000 мм с крепежными отверстиями.
|
100
140 180 |
| Плоская накладка из оцинкованной стали с лаковым покрытием,
длина 4000 мм, с крепежными отверстиями.
| 40 60 80 100 120
|
| Внутренний уголок из оцинкованной стали с лаковым покрытием,
длина 4000 мм, с крепежными отверстиями.
|
40 50
|
| Внутренний уголок из оцинкованной стали с лаковым покрытием,
длина 4000 мм, с крепежными отверстиями.
| 40 50 |
| Внешний уголок из оцинкованной стали с лаковым покрытием, длина 4000 мм, с крепежными отверстиями.
| 80 100 120 140 160 180
|
| Внешний уголок из оцинкованной стали с лаковым покрытием, длина 4000 мм, с крепежными отверстиями.
| 60 80 100 120 140 160 180
|
Стеллажи
Легкосборные стеллажные конструкции без болтовых соединений.Конструкция рамы: труба квадратного сечения 25х25 мм, торцы закрыты, снизу регулировочный болт. Перекладина из трубы овального сечения, шаг 160 мм.Полка-решетка: алюминиевый профиль 40х7 мм с запрессованными пластинами, расстояние 30 мм.

Полка: гнутая конструкция из листа 1,2 мм, при больших длинах и/или ширины усилены с внутренней стороны.
Дополнительные элементы:
Угловые соединительные
|  | нерж. сталь |
Скоба для крепления к стене
|  | нерж. сталь |
Скобы |  | полиамид |
Двойная соединительная скоба
| | нерж. сталь |
Крюки |  | нерж. сталь |
Нижний | | нерж. сталь |
Допустимые нагрузки для полок и полок-решеток
Длина полки (мм) | 600 | 800 | 900 | 1000 | 1100 | 1200 | 1400 | 1500 |
Допустимая нагрузка | 160 | 150 | 150 | 150 | 125 | 110 | 100 | 100 |
Оборудование электроподогрева грунта |

|
Оборудование электроподогрева грунта укладывается между слоями пароизоляции и теплоизоляции. Трещины, а также другие дефекты бетонного основания не оказывают никакого воздействия на маты электроподогрева. Тефлоновая (FEP) изоляция проводов позволяет надолго и надежно защитить их от воздействия щелочной среды. Запаивание нагревающих проводов в жесткую ПВХ пленку обеспечивает дополнительную защиту.
Краткие характеристики
Электрические маты для предотвращения промерзания грунта соответствуют следующим характеристикам:
- Нагревающие провода полностью запаяны в жесткую ПВХ пленку. Ширина мата 0,27 м.
- Удельная мощность минимум 15 Вт/кв.м., плотность укладки максимум 0,9 м.
- Длина "холодного" конца для подключения матов к блоку управления 30 м.
- Блок управления с цифровой индикацией заданной и фактической температур или без цифровой индикации.
- Тип нагревательных проводов - NH6YMY90 согласно DIN 57253.
Комплект поставки
В комплект поставки входит все необходимое для монтажа оборудования подогрева: нагревающие маты, соединительные провода требуемой длины, температурные датчики, блоки управления. |
Фронты SK, SG |
 |
Teledoor предлагает обширный ассортимент стеклянных дверей для коммерческого и промышленного применения. Продукция соответствует последнему слову техники, а также всем требованиям техники безопасности.
Полотна дверей:
- двухкамерный стеклопакет
- внешнее стекло закаленное, толщина 4 мм.
- низкотемпературные: трехкамерный стеклопакет, внешнее стекло со встроенным электроподогревом.
- внешняя рама дверей из анодированного алюминия с электроподогревом.
- все электрические соединения через разъемы.
Рама:
- рама из анодированного алюминия, профили с холодопрерывающими вставками
- низкотемпературное исполнение с электроподогревом.
Фурнитура:
- магнитная уплотнительная резина
- самозакрывающиеся петли
- осветительная арматура, предварительно установлена на вертикальных стойках рамы.
|
Фронты WI |
 |
Полотна дверей:
- однокамерный стеклопакет
- внешнее стекло закаленное, толщина 4 мм
- внешняя рама дверей из анодированного алюминия с электроподогревом.
- все электрические соединения через разъемы.
Рама:
- рама из анодированного алюминия, профили с холодопрерывающими вставками
- низкотемпературное исполнение с электроподогревом.
Фурнитура:
- магнитная уплотнительная резина
- самозакрывающиеся петли
- осветительная арматура, предварительно установлена на вертикаль-ных стойках рамы.
|
Фронты SK, SG |
|
Полотна дверей:
- однокамерный стеклопакет
- внешнее стекло закаленное, толщина 4 мм
- внешняя рама дверей из ПВХ
Рама:
Фурнитура:
- высокоэластичное боковое резиновое уплотнение
- самозакрывающиеся
|
Стеллажи Blackload |
 |
Стеллажи для установки за стеклянными дверьми изготовлены из стали и покрыты эпоксидным лаком. Конструкция стеллажа не требует его крепления к стенам либо потолку камеры.
Рабочая поверхность стеллажей покрыта специальным составом облегчающим соскальзывание товара к покупателю, без добавления специальной смазки.
Стандартная комплектация:
Включает в себя 4 уровня полок для напитков с 7 шт. разделителями, фронтальными ограничителями и ценниками.
Цвет:
светло-серый RAL 7035
черный RAL 9022
Размеры стоек (В х Г) 1.950 х 450 мм / 1.950 х 610 мм
Глубина рабочей поверхности стеллажа при этом 640 мм / 940 мм
Глубина 640 мм. Глубина 940 мм.
|
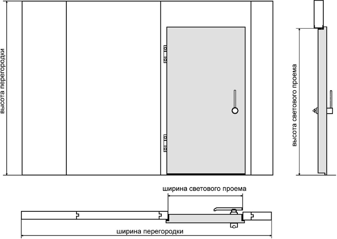
Информация
1. Притвор распашных дверей

|
2. Направление отката откатных дверей

|
3. Окна для подвесного пути в распашных дверях

| |
4. Стандартные типы поверхностей
хром-никелиевая нерж. сталь 0,8 мм, материал № 1.4301 пищевой алюминий, 0,8 мм, материал AlMg3 оцинк. сталь 0,63 мм покрытая полиэстерным лаком 25 мм.
5. Изоляция
Жесткая полиуретановая пена 100% - безфреоновая. Коэффициент теплопроводности:
К = l/S (Вт/К м2) например ISO 80
К = 0,025/0,08 = 0,31 Вт/К м2
Коэффициент l = 0,025 Вт/К м2 (при 100% - безфреоновой пене).
Толщина изоляции S [м]
6. Вес панелей (ориентировочно в кг/м2)
|
7. Окна для подвесного пути в откатных дверях

| |
|