Проекты и решения |
|
| Предприятия: |
|
|
|||||||||||||||
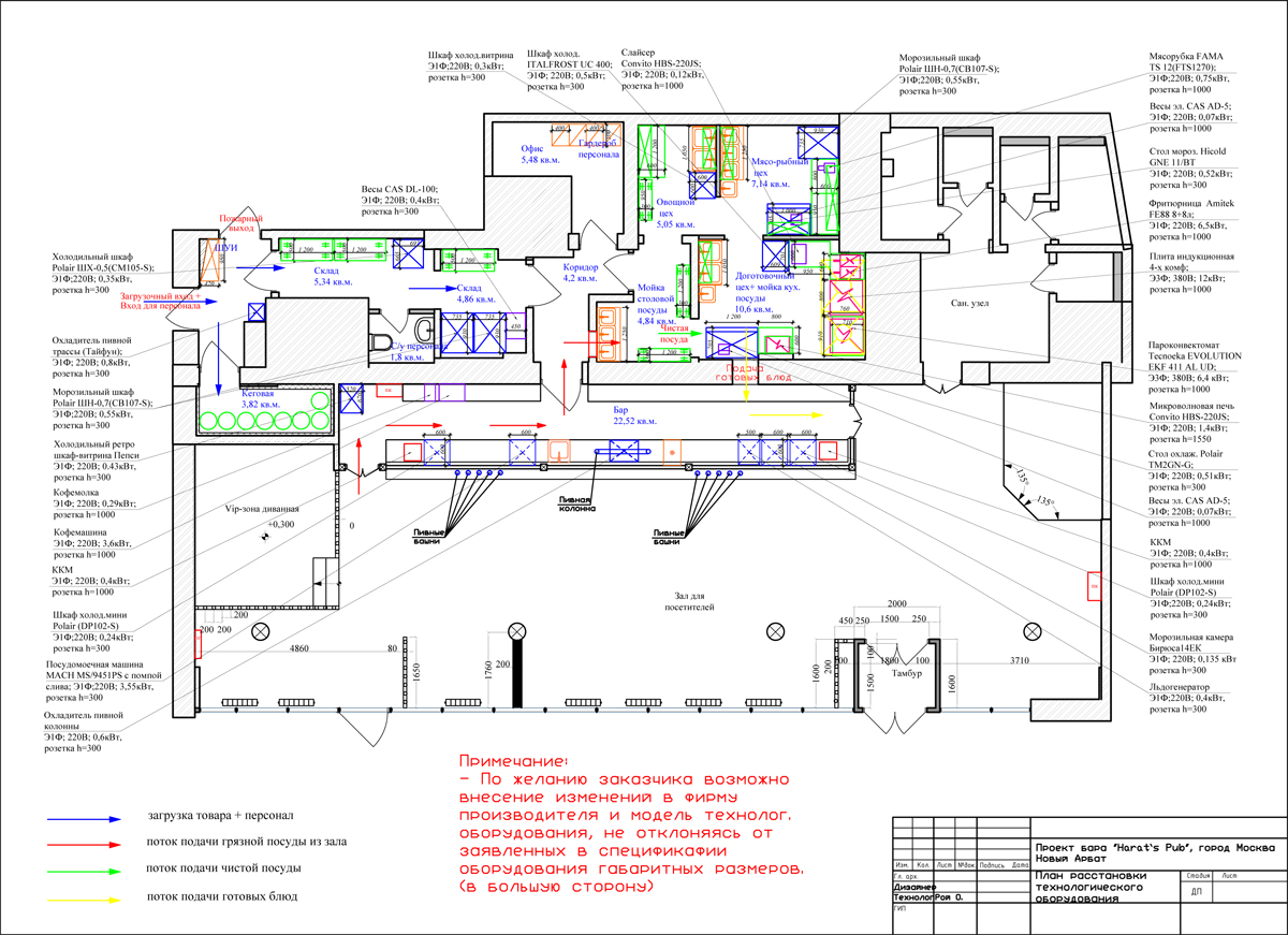
«Harat's» - это место встречи большой компании друзей, где царит атмосфера свободы и невероятных музыкальных коллабораций. Здесь можно ощутить вкус настоящего Ирландского паба.
Специалистами компании «Русский Проект»® в сжатые сроки было подобрано оборудование, согласно желанию заказчика, отгружено и установлено на объект, параллельно с активными строительными работами.
Основу теплового цеха составили: надежный пароконвектомат UNOX XV 393, функциональная индукционная плита ITERMA ПКИ-4КВ/3,5/840/850/360 и востребованная в пабе фритюрница LILOMA FLT 8+8.
За хранение продуктов отвечают: холодильные и морозильные шкафы POLAIR и прекрасно зарекомендовавшие себя холодильные столы COOLEQ.
В барной зоне важные помощники: машина посудомоечная SILANOS NE700 и льдогенератор SCOTSMAN B 4015 AS, барный холодильник со стеклянной дверью COOLEQ TBC-145.
Не может подобное заведение обойтись без точного весового оборудования - CAS.
Традиционно, нейтральное оборудование - Итерма: зонты вытяжные, навесные полки, подставки, столы пристенные, рукомойники, ванны моечные, шкафы для одежды, стеллажи и многое другое...
Таганка
Новый Арбат
Курская
























